由于我公司產品型號眾多,可生產1-20蒸噸/小時的燃氣(油)鍋爐; 1-20蒸噸/小時的生物質鍋爐; 10-500萬大卡/小時的導熱油鍋爐; 環保再生能源成套設備以及各種壓力容器等。產品詳情、報價資料歡迎撥打全國免費客服電話400-0373-598 或 15837372021或0373-5591968咨詢,獲取*新報價! 也可通過網站留言,我們會盡快與您聯系!
我司生產的生物質鍋爐,分為生物質蒸汽鍋爐、生物質熱水鍋爐、生物質導熱油爐等,規格齊全,均為現貨銷售,可當天發貨。廠家直銷,配置*全,價格*低,售后無憂!

額定蒸發量:1--20噸/時
額定工作壓力:0.4--2.5Mpa
鍋爐在結構設計上,相對傳統鍋爐爐膛空間較大,同時布置非常合理的二次風,有利于生物質燃料燃燒時瞬間析出的大量揮發分充分燃燒。
鍋爐的給料、燃燒、除渣、給水、點火都可采用自動控制,操作非常方便。鍋爐配有自動清灰裝置,能及時清除鍋爐受熱面的積灰,保證鍋爐**穩定運行。鍋爐尾部布置有節能器、也可根據用戶需要布置空氣預熱器。相對傳統的鍋爐,鍋爐效率更高,排煙溫度低。
采用**保溫材料,鍋爐表面溫度低,散熱損失可以忽略不計。嚴格按中國國家規范和標準生產,所有受壓部件均采用**鍋爐鋼材。每臺鍋爐出廠前都要經過嚴格的檢驗和測試,包括水壓試驗和X射線檢測。設置有人孔、檢查門、觀火孔等,維護保養十分方便。生物質鍋爐的*大特點是:節能、環保,且安裝使用方便。
適用燃料:生物質顆粒
生物質燃料由秸稈、稻草、稻殼、花生殼、玉米芯、油茶殼、棉籽殼等經過加工產生的塊狀環保新能源。生物質顆粒的直徑一般為6~10毫米。生物質顆粒燃料發熱量大,發熱量在3900~4800千卡/kg左右,經炭化后的發熱量高達7000—8000千卡/kg。 生物質顆粒燃料燃燒后灰碴*少,灰渣是品位*高的**有機鉀肥,生物質顆粒燃料不含硫磷,不腐蝕鍋爐,可延長鍋爐的使用壽命。
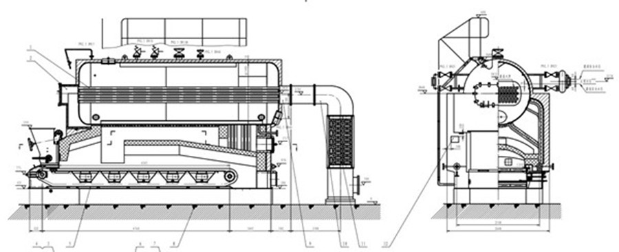
DZL型單鍋筒生物質鍋爐圖紙:

DZL型單鍋筒生物質鍋爐流程圖:


安裝在印度某廠的8噸生物質蒸汽鍋爐
安裝在南非某廠的4噸生物質蒸汽鍋爐
安裝在湖南某食品廠的6噸生物質蒸汽鍋爐

安裝在廣西某化工廠的4噸生物質蒸汽鍋爐


名 稱:新鄉市新大鍋爐容器有限公司
傳 真:0373-5591968
聯系人:王經理
手 機:15837372021 18738300055
郵 編:453731
商務QQ:3022209105
網 址:http://www.jslw.com.cn